Zestaw Cyfrowy Vidos S1201-SKP Skrzynka z wideodomofonem i czytnikiem kart, M1021B Monitor 7'' wideodomofonu

S1201-SKP Skrzynka na listy z wideodomofonem
Przelotowa, jednowrzutowa skrzynka na listy z wbudowanym panelem wideodomofonowym Vidos DUO S1201A
SYSTEM VIDOS DUO
Niepolaryzowane, dwużyłowe połączenie i współpraca z modułami funkcyjnymi to niezawodne i bardzo komfortowe rozwiązanie instalacyjne
sprawdzające się w niemal każdych warunkach. Urządzenia odznaczają się doskonałą jakością wykonania i funkcjami zarezerwowanymi dotychczas dla produktów najwyższych serii. Gustowne wzornictwo łączy wszystkie zalety systemu DUO w jedną całość tworząc tym samym produkt najwyższej próby.

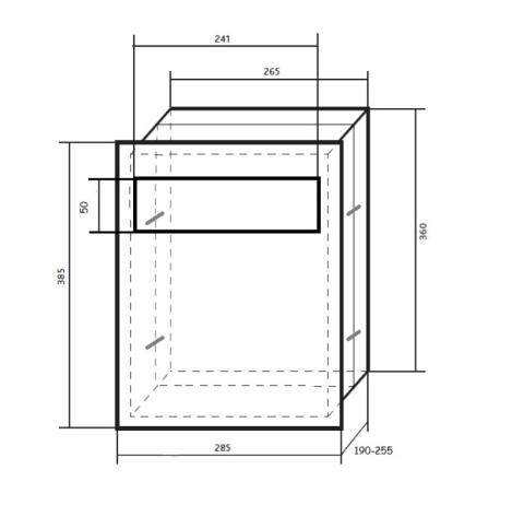
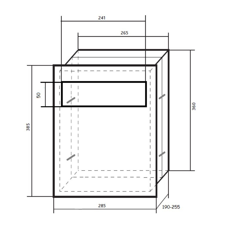
Skrzynka przeznaczona jest do montażu w płytkich murkach ogrodzeniowych o głębokości już od 19cm.
Dzięki zastosowaniu materiałów najwyższej jakości jest odporna na działanie czynników atmosferycznych.
Panel przedni o szerokości 285 mm i wysokości 385 mm posiada otwór wrzutowy zabezpieczony klapką. Otwór (o wymiarach 241 x 45 mm) posiada zagięcie utrudniające wyjęcie korespondencji przez osoby niepowołane. Panel tylni wykonany jest w formie pełnych drzwiczek zamykanych na klucz . W drzwiczkach umieszczone zostało okienko, które umożliwia sprawdzenie zawartości bez konieczności otwierania skrzynki.
Szuflada o szerokości 265 mm jest dwuczęściowa i rozsuwana. Szuflada to pojemnik na korespondencję wbudowywany w słupek lub mur. W tym modelu została wykonana jest ze stali szlachetnej. Dzięki rozsuwanej szufladzie głębokość skrzynki może być regulowana w zakresie 190-255 mm.
Dane techniczne:
Typ skrzynki – przelotowa z wideodomofonem
Liczba wrzutów – jeden
Materiał – stal nierdzewna frezowana
Liczba przycisków domofonu lub wideodomofonu – 1
Typ zastosowanej kamery – S1201A
Szerokość szuflady – 265 mm
Regulacja głębokości skrzynki –190-255mm
Wymiary panela przedniego – 285 x 385 mm
Otwór wrzutowy – 241 x 45 mm

Dane techniczne stacji bramowej S1201:
Kamera 2.0Mpix, kąt widzenia obiektywu 170°
Wbudowany czytnik zbliżeniowy RFID w standardzie UNIQUE 125kHz.
W zestawie breloki MASTER do programowania użytkowników RFID
Podświetlany szyld informacyjny. Regulowana jasność podświetlenia.
1 wyjście przekaźnikowe (drugi przekaźnik przez moduł B5 ).
Wyjście do podłączenia czujnika detekcji ruchu (PIR).
Funkcja zbliżania obrazu ( zoom ).
Podświetlenie nocne LED – (światło białe).
Wskaźnik rozpoczęcia rozmowy i otwarcia rygla.
Obsługuje elektrozaczepy i zwory elektromagnetyczne.
Ilość obsługiwanych urządzeń wewnętrznych – 13
Obsługuje funkcję adresowanego interkomu
Współpracuje ze wszystkimi monitorami i unifonami z serii DUO
M1021B Monitor wideodomofonu
SYSTEM VIDOS DUO
Niepolaryzowane, dwużyłowe połączenie i współpraca z modułami funkcyjnymi to niezawodne i bardzo komfortowe rozwiązanie instalacyjne
sprawdzające się w niemal każdych warunkach. Urządzenia odznaczają się doskonałą jakością wykonania i funkcjami zarezerwowanymi dotychczas dla produktów najwyższych serii. Gustowne wzornictwo łączy wszystkie zalety systemu DUO w jedną całość tworząc tym samym produkt najwyższej próby.

Wielofunkcyjny monitor przeznaczony do pracy w systemie VIDOS DUO. Dedykowany dla systemów jednorodzinnych i wieloabonentowych.
Dotykowy, 7″ wyświetlacz pozwala na wygodne nawigowanie po ekranowym menu. Wbudowana pamięć zdjęć oraz obsługa kart micro SD umożliwiają rejestrowanie wizyt oraz udostępniają możliwość pozostawiania wiadomości przez odwiedzających podczas naszej nieobecności.
Monitor wyposażony jest w funkcję obsługi maksymalnie 4 stacji bramowych i poza furtką może sterować dodatkowym przekaźnikiem np. bramą automatyczną (po dodaniu modułuB5) oraz obsługę czujnika detekcji ruchu w stacji bramowej
Rozbudowana funkcja adresowanego interkomu pozwala na swobodną komunikację z każdym innym odbiornikiem w systemie jednorodzinnym oraz wielolokatorskim:
Interkom wewnętrzny: adresowane połączenia w jednym lokalu
Interkom zewnętrzny: Adresowane połączenie z innym lokalem w systemie wieloabonentowym
Nadawanie: Przekazywanie komunikatów do innych monitorów w lokalu bez konieczności odbierania połączenia
Po podłączeniu odpowiednich modułów system uzyskuje nowe możliwości takie jak : przekierowanie rozmowy na telefon, podłączenie dodatkowych kamer CCTV, sterowanie oświetleniem.
Obudowa wykonana z wysokiej jakości polerowanego tworzywa sztucznego. Subtelny, ascetyczny design doskonale wkomponuje się w każde wnętrze.
FUNKCJE:
Dotykowy, panoramiczny ekran LCD TFT o przekątnej 7″ 800 x 480 pix
Menu w 11 językach
Możliwość obsługi do 4 stacji bramowych ( dodatkowe stacje bramowe za pomocą modułu M-SM4)
Sterowanie 2 przekaźnikami ( np. furtka + brama automatyczna )
Wbudowana pamięć na zapis 118 zdjęć. Obsługa kart pamięci dla filmów (max. 32GB)
Obsługa funkcji detekcji ruchu ( Przy zastosowaniu czujnika ruchu dla stacji bramowej )
Obsługa do 4 dodatkowych kamer CCTV. Podgląd z kamer możliwy przy użyciu modułu M-K4
Przekierowanie rozmowy na telefon użytkownika za pomocą modułu GSM. |
Adresowany interkom wewnętrzny (w ramach 1 lokalu) i zewnętrzny ( połączenia pomiędzy lokatorami w systemie wieloabonentowym )
Możliwość przesyłania wiadomości tekstowych pomiędzy monitorami
Sterowanie oświetleniem za pomocą modułu B5
20 melodii dzwonka
Przycisk SOS umożliwia wysłanie wiadomości alarmowej na telefon komórkowy
Możliwość ustawienia trybów pracy podczas nieobecności oraz trybu „nie przeszkadzać”
Prosta konfiguracja przy użyciu złącza DIP SWITCH
Kolor czarny (B)
Możliwość rozbudowy o dodatkowe 3 urządzenia wewnętrzne z serii DUO
Rozbudowa do 16 urządzeń wewnętrznych przez zastosowanie modułów M-SM4 ( tylko systemy 1 i 2 lokatorskie)
Wymiary: 226 x 132 x 18mm
Instalacja 2 przewodowa bez polaryzacji
Zasilanie z zasilacza systemowego P24/18 lub P26/40 ( nie jest w komplecie)
WSPÓŁPRACUJE ZE WSZYSTKIMI MONITORAMI I STACJAMI BRAMOWYMI VIDOS DUO